The Role of CAD As-Built Drawing Services in Building Renovations
Renovating a building without accurate documentation is like navigating unfamiliar terrain without a map. You might eventually reach your destination, but the journey will be far more difficult than it needs to be. As-built drawings provide that essential roadmap, offering a precise record of a structure's existing conditions before any renovation work begins.
These technical documents capture every detail of a building's current state, from structural elements to MEP (mechanical, electrical, and plumbing) systems. For contractors, architects, and project managers, CAD as-built drawing services are invaluable tools that transform renovation projects from guesswork into well-planned operations.
Whether you're updating a historic building or modernizing a commercial space, understanding the role of as-built drawings can mean the difference between a successful renovation and costly delays.
Read: Why CAD As-Built Drawings Are Essential for Construction
What are As-Built Drawings?
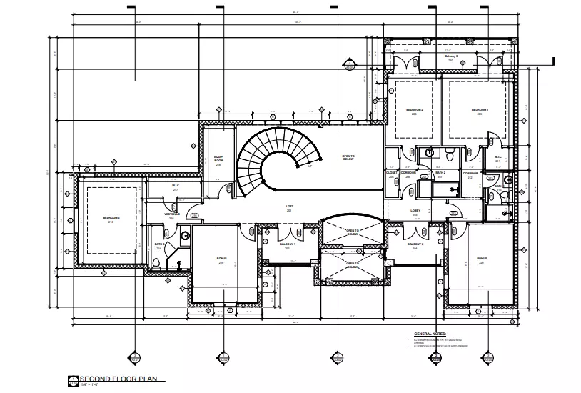
As-built drawings, sometimes called "record drawings," document the actual dimensions, geometry, and location of all elements within a building. Unlike original construction plans that show the intended design, as-built drawings reflect reality—including any modifications, additions, or deviations that occurred during construction or over the building's lifetime.
These drawings typically include:
- Floor plans showing room layouts, wall positions, and spatial arrangements
- Elevation drawings depicting vertical building facades and heights
- Section cuts revealing internal structures and relationships between different levels
- MEP system layouts documenting mechanical, electrical, and plumbing infrastructure
- Structural details highlighting load-bearing elements, columns, and foundations
Modern as-built drawing services often utilize advanced technologies like 3D laser scanning and Building Information Modeling (BIM) to capture precise measurements. This digital approach ensures accuracy levels that traditional manual measurement methods simply cannot match.
Why As-Builts are Crucial for Renovations
Renovation projects introduce unique challenges that new construction doesn't face. You're working within existing constraints, dealing with unknown conditions, and often uncovering surprises hidden within walls and ceilings. As-built drawings address these challenges by providing a foundation of reliable information.
Planning with Confidence
Architects and designers need accurate measurements to create renovation plans that actually fit the existing space. Without as-built drawings, they're forced to rely on outdated original plans (which rarely reflect current conditions) or time-consuming on-site measurements that may still miss critical details.
With comprehensive as-built documentation, design teams can:
- Create renovation plans that align perfectly with existing conditions
- Identify structural limitations before finalizing designs
- Plan MEP system modifications without conflicts
- Estimate materials and costs with greater precision
Avoiding Costly Surprises
Construction delays often stem from encountering unexpected conditions. A wall that wasn't supposed to be load-bearing turns out to be structural. An HVAC duct occupies space where new plumbing needs to run. These discoveries halt work, require redesign, and inflate budgets.
As-built drawing services minimize these surprises by thoroughly documenting existing conditions before renovation begins. Contractors can anticipate challenges, prepare solutions in advance, and keep projects on schedule.
Benefits of Accurate As-Built Drawings
Cost Savings
Accurate documentation directly impacts a project's bottom line. When renovation teams work from reliable as-built drawings, they reduce waste in multiple ways:
- Material ordering accuracy: Precise measurements mean ordering the right quantities the first time
- Reduced rework: Fewer design changes during construction when existing conditions are known upfront
- Labor efficiency: Workers spend less time problem-solving on-site and more time executing planned tasks
- Fewer change orders: Minimizing unexpected conditions reduces expensive mid-project modifications
Clash Detection
Modern as-built drawing services, particularly those utilizing BIM technology, enable clash detection before construction begins. This process identifies conflicts between different building systems—such as a proposed ductwork path that intersects with existing structural beams.
Identifying these clashes during the planning phase allows designers to resolve conflicts on paper rather than on-site. This foresight prevents demolition of newly installed systems, reduces material waste, and keeps schedules intact.
Regulatory Compliance
Building codes and regulations evolve constantly. Renovation projects must comply with current standards, which may differ significantly from codes in place when the building was originally constructed. As-built drawings document existing conditions, helping project teams:
- Identify elements that don't meet current codes
- Plan necessary upgrades to achieve compliance
- Provide documentation for permit applications and inspections
- Create records for future reference and maintenance
Accurate as-built documentation also proves invaluable during inspections, giving officials clear information about what existed before renovation and what changes were made.
Challenges in Creating As-Built Drawings
Accuracy Concerns
The value of as-built drawings depends entirely on their accuracy. Traditional measurement methods using tape measures and laser distance meters leave room for human error. Complex spaces with irregular geometries, high ceilings, or limited access points present additional measurement challenges.
Professional as-built drawing services address accuracy concerns through:
- 3D laser scanning technology that captures millions of data points with millimeter precision
- Multiple verification methods to cross-check measurements
- Experienced technicians who understand building systems and know what details matter
- Quality control processes that review drawings before delivery
Companies like Archdraw Outsourcing specialize in converting raw scan data into professional CAD drawings and BIM models, ensuring accuracy while making information accessible to project teams.
Time Constraints
Renovation projects often operate under tight schedules. Property owners want minimal disruption, contractors have crews ready to begin work, and project deadlines loom. Creating comprehensive as-built drawings takes time—time that stakeholders may be reluctant to allocate at a project's start.
However, this upfront time investment typically saves far more time during construction. The hours spent documenting existing conditions prevent days or weeks of delays caused by unforeseen conflicts and required redesigns.
Read: Data-Driven Innovators Advancing Smart Drafting and Planning
Technology and Expertise
Advanced measurement technologies like 3D laser scanning and BIM modeling require significant investment in equipment and training. Not all firms possess these capabilities in-house, which can create barriers to obtaining high-quality as-built documentation.
Outsourcing as-built drawing services to specialized providers offers a solution. These firms maintain state-of-the-art technology and employ experts dedicated to creating accurate documentation. This approach gives renovation teams access to professional-grade as-built drawings without requiring internal investment in specialized equipment and training.
Maximizing Renovation Success with As-Built Documentation
As-built drawing services have evolved from optional nice-to-haves into essential components of successful renovation projects. The combination of accurate existing condition documentation, clash detection capabilities, and regulatory compliance support creates a foundation for projects that finish on time and within budget.
Whether you're planning a small-scale renovation or a major building transformation, investing in professional as-built drawings at the project's outset pays dividends throughout construction. The clarity they provide reduces risk, improves communication among project stakeholders, and ultimately delivers better outcomes for building owners.
For firms seeking reliable as-built drawing services, partnering with experienced providers like Archdraw Outsourcing ensures access to accurate documentation created with advanced technology and deep industry expertise. The right documentation transforms renovation challenges into manageable, predictable processes—giving project teams the confidence to build better.