Why CAD As-Built Drawings Are Essential for Construction Success

Why CAD As-Built Drawings Are Essential for Construction Success

Construction projects are complex orchestrations of planning, execution, and documentation. Yet one of the most critical elements often gets overlooked until it's desperately needed: accurate as-built drawings. These detailed records of what was actually constructed—rather than what was originally planned—can make or break future renovations, maintenance projects, and facility management efforts.


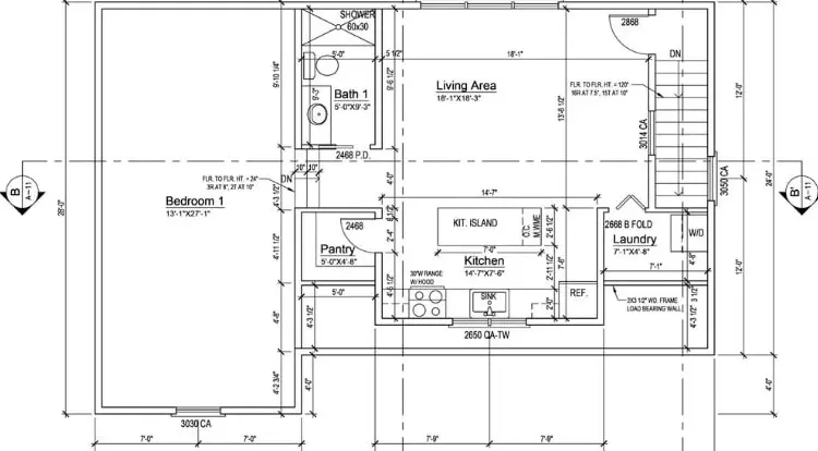
CAD as-built drawings represent the final, precise documentation of a completed construction project. Unlike original design drawings that show intended specifications, as-built drawings capture the reality of what exists on-site, including any modifications, deviations, or field changes that occurred during construction. They serve as the definitive reference for architects, engineers, facility managers, and contractors who need to understand exactly how a building or structure was constructed.


The difference between having accurate as-built documentation and relying on outdated or incomplete records can cost thousands of dollars and weeks of delays. When renovation teams must guess at pipe locations, electrical routing, or structural modifications, projects inevitably face unexpected complications that proper documentation could have prevented.


The Transformative Benefits of CAD As-Built Drawings


Unmatched Accuracy and Precision


Traditional hand-drawn as-builts often contain measurement errors, unclear details, and inconsistencies that compound over time. CAD as-built drawing services eliminate these issues through digital precision and standardized symbols. Every measurement, connection point, and system component gets documented with mathematical accuracy, creating a reliable foundation for future work.


This precision becomes invaluable when contractors need to locate utilities before excavation, when engineers calculate load-bearing modifications, or when facility managers plan space reconfigurations. The ability to trust dimensional information without field verification saves both time and money on every subsequent project.


Enhanced Communication Across Teams


Construction projects involve numerous stakeholders—architects, engineers, contractors, facility managers, and building owners—who must collaborate effectively throughout a building's lifecycle. CAD as-built drawings provide a universal language that all parties can understand and reference.


When everyone works from the same accurate documentation, miscommunication decreases dramatically. Contractors can bid more accurately on renovation projects, engineers can design modifications with confidence, and facility managers can maintain systems more efficiently. This shared understanding reduces costly errors and change orders that plague projects lacking proper documentation.


Streamlined Future Renovations and Expansions


Building renovations and expansions require detailed knowledge of existing conditions. Without accurate as-built drawings, renovation projects often begin with extensive investigation work—opening walls, probing floors, and testing systems to understand current configurations. This exploratory phase adds significant time and cost to every project.


CAD as-built drawings eliminate much of this investigation by providing detailed information about structural elements, mechanical systems, electrical routing, and plumbing configurations. Renovation teams can design modifications with confidence, order materials accurately, and schedule work efficiently because they understand exactly what they're working with from day one.


Optimized Facility Management Operations


Modern facility management relies heavily on accurate building information for preventive maintenance, space planning, and system upgrades. CAD as-built drawings provide facility managers with precise layouts, equipment specifications, and system configurations that enable proactive maintenance strategies.


When HVAC filters need replacement, facility managers can quickly identify equipment locations and specifications. When office spaces require reconfiguration, accurate floor plans show exactly what walls can be modified and where utilities are located. This information transforms reactive maintenance into strategic facility management.


The Process Behind Professional CAD As-Built Creation


Comprehensive Data Collection Methods


Creating accurate CAD as-built drawings begins with thorough field documentation. Professional drafting teams use multiple data collection methods to ensure completeness and accuracy. Laser scanning captures precise dimensional data for complex structures, while traditional measurement techniques verify critical details.


Digital photography supplements dimensional data by documenting equipment labels, connection details, and system configurations that might be difficult to convey through drawings alone. This multi-method approach ensures that no critical information gets overlooked during the documentation process.


Seamless BIM Integration


Building Information Modeling (BIM) has transformed how construction projects are documented and managed. Modern CAD as-built drawing services integrate seamlessly with BIM workflows, creating intelligent 3D models that contain both geometric and attribute data.


This integration allows as-built information to feed directly into facility management systems, enabling sophisticated analysis and reporting capabilities. When combined with BIM platforms, as-built drawings become dynamic databases that support everything from energy analysis to space utilization studies.


Rigorous Quality Control Measures


Professional as-built documentation requires multiple quality control checkpoints to ensure accuracy and completeness. Experienced drafters cross-reference field measurements with original design documents, identifying and documenting all deviations from planned configurations.


Layer management, standardized symbols, and consistent line weights ensure that drawings remain clear and professional. Final quality reviews verify that all systems are properly documented and that drawing standards meet industry requirements for long-term usability.


Overcoming Common As-Built Documentation Challenges


Addressing Access and Safety Limitations


Construction sites and occupied buildings often present access challenges that complicate documentation efforts. Mechanical rooms may be cramped, ceilings may be inaccessible, and some areas may require special safety precautions. Professional drafting teams develop strategies for working around these limitations while maintaining documentation completeness.


Remote sensing technologies, including drone surveys and long-range laser scanning, help overcome access limitations in high or hazardous areas. Coordination with facility operations ensures that documentation work proceeds safely without disrupting building functions.


Managing Complex System Interactions


Modern buildings contain intricate networks of mechanical, electrical, and plumbing systems that interact in complex ways. Documenting these systems requires specialized knowledge and careful attention to how different trades coordinate their installations.


Experienced professionals understand these system interactions and can identify potential conflicts or unusual configurations that require special documentation. This expertise ensures that as-built drawings accurately represent not just individual components but also system relationships that affect maintenance and modification work.


Ensuring Long-Term Usability


As-built drawings must remain useful for decades after their creation. This requires thoughtful consideration of drawing standards, file formats, and storage systems that will remain accessible over time. Professional CAD as-built drawing services use industry-standard formats and follow established conventions that ensure drawings remain usable regardless of software changes or organizational transitions.


Proper file organization, clear naming conventions, and comprehensive drawing indexes help future users locate and interpret documentation efficiently. These seemingly minor details become crucial when drawings are needed years or decades after their creation.


Implementing As-Built Documentation for Project Success


The value of accurate as-built documentation extends far beyond the initial construction phase. These drawings become valuable assets that support efficient facility operations, reduce renovation costs, and enable strategic space planning throughout a building's lifecycle.


Organizations serious about maximizing their facility investments should consider partnering with professional services that specialize in comprehensive documentation. Archdraw Outsourcing and similar providers offer the expertise and resources needed to create documentation that truly serves long-term facility management goals.


Whether you're completing a new construction project or updating documentation for an existing facility, investing in professional CAD as-built drawings will pay dividends for years to come. The accuracy, precision, and professional standards that these services provide create a foundation for confident decision-making and efficient project execution.